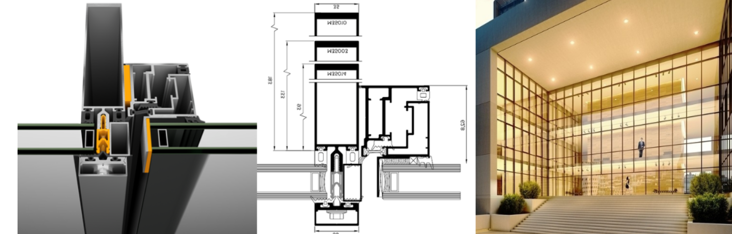
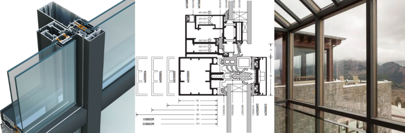
CURTAIN WALL SYSTEMS
Compared to classical methods, aluminum curtain walls offer more practical solutions and are highly preferred due to their advantages such as light weight, quick and practical application, aesthetic and stylish appearance, resistance to dirt, and easy cleaning.
These systems are of great importance not only for giving buildings a beautiful appearance but also for providing heat and sound insulation, thus enabling savings and extending the lifespan of buildings.
Furthermore, the two most important factors in aluminum facade design, wind and vacuum effects, are included in static calculations at the proposal stage, systems suitable for these calculations are selected, and this information is shared with the customer. In this way, risks are eliminated.
At Skyline Aluminum, we offer different aluminum curtain wall solutions such as cassette structural silicone, structural silicone, classic capped, semi-capped, panel, transparent, and roof skylight systems, according to the building's requirements as well as your architectural preferences and needs.




